Active

Listing Tools

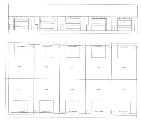
OTTER TAIL LAKE 30X40 STORAGE CONDOMINIUM UNITS in a PRIME & convenient location to several lakes (Otter Tail, Deer, East Lost, Twin, Round, and many more) just West of Otter Tail Lake off of county Road 1. Have the freedom of owning your own unit and finishing as you like. These units are 2x6 stick built construction on a concrete slab with thickened edges, 16W'x11H' insulated overhead, 100-amp electric panel, 2x4 shared divider walls, steel wainscot around building, 3' apron, Low HOA dues to cover snow/grounds upkeep, driveway maintenance and shared exterior insurance. Owner/Agent

Property Details of 28396 350th Avenue, Unit 2

Exterior Features

Map Location

Listed by John Good of Lakes Family Real Estate/Otter Tail Real Estate

  Based on information submitted to MLS Grid / NORTHSTAR as of March 11, 2026 11:41 PM EDT . All data is deemed reliable but is not guaranteed accurate by the MLS. All information should be independently reviewed and verified for accuracy. IDX information is provided exclusively for consumers’ personal, noncommercial use and may not be used for any purpose other than to identify prospective properties consumers may be interested in purchasing.

Hi there! How can we help you?

Contact us using the form below or give us a call.

Send Us A Message:

I agree to receive marketing and customer service calls and text messages from Flom Property Group. To opt out, you can reply 'stop' at any time or click the unsubscribe link in the emails. Consent is not a condition of purchase. Msg/data rates may apply. Msg frequency varies. Privacy Policy.

Do not fill in this field:

This site is protected by reCAPTCHA and the Google Privacy Policy and Terms of Service apply.

Hi there! How can we help you?

Contact us using the form below or give us a call.

Send Us A Message:

Do not fill in this field:

This site is protected by reCAPTCHA and the Google Privacy Policy and Terms of Service apply.

Hi there! How can we help you?

Contact us using the form below or give us a call.

Send Us A Message:

Do not fill in this field:

This site is protected by reCAPTCHA and the Google Privacy Policy and Terms of Service apply.

Do not fill in this field:

This site is protected by reCAPTCHA and the Google Privacy Policy and Terms of Service apply.

Do not fill in this field:

This site is protected by reCAPTCHA and the Google Privacy Policy and Terms of Service apply.

Do not fill in this field:

This site is protected by reCAPTCHA and the Google Privacy Policy and Terms of Service apply.

$

Do not fill in this field:

This site is protected by reCAPTCHA and the Google Privacy Policy and Terms of Service apply.