Active

Listing Tools

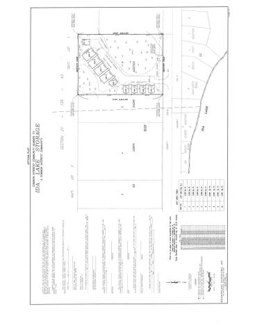
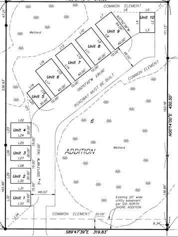
IDEAL LOCATION at IDA LAKE STORAGE UNITS. Just off the corner of County Rd 5 and County Rd 4-Two sizes to choose from: 30x40 or 40x64. SPECS: Slab on grade 2'x6' construction, 2' over-hangs, floor drain, 16' W x14' H insulated garage doors, garage door openers (2 remotes), 4 windows, light and electric package included (4 over-head lights, 1 exterior light above garage door and 6 total outlets) & 200 amp panel. AMMENITIES: 4' apron, 45' W asphalt driveway, rock landscaping between buildings, $500/annual association fee for snow removal, grounds upkeep and general liability for common area. Currently under construction. Lake Region Electric has a one-time hook-up fee of $537. Greater Minnesota Gas has a one-time hook-up fee of $1,600 for natural gas.

Property Details of 14844 Co Highway 4, Unit 7

Exterior Features

Map Location

Listed by Lisa Jasken of Re/Max Lakes Region

  Based on information submitted to MLS Grid / NORTHSTAR as of November 15, 2025 6:40 PM EST . All data is deemed reliable but is not guaranteed accurate by the MLS. All information should be independently reviewed and verified for accuracy. IDX information is provided exclusively for consumers’ personal, noncommercial use and may not be used for any purpose other than to identify prospective properties consumers may be interested in purchasing.

Hi there! How can we help you?

Contact us using the form below or give us a call.

Send Us A Message:

I agree to receive marketing and customer service calls and text messages from Flom Property Group. To opt out, you can reply 'stop' at any time or click the unsubscribe link in the emails. Consent is not a condition of purchase. Msg/data rates may apply. Msg frequency varies. Privacy Policy.

Do not fill in this field:

This site is protected by reCAPTCHA and the Google Privacy Policy and Terms of Service apply.

Hi there! How can we help you?

Contact us using the form below or give us a call.

Send Us A Message:

Do not fill in this field:

This site is protected by reCAPTCHA and the Google Privacy Policy and Terms of Service apply.

Hi there! How can we help you?

Contact us using the form below or give us a call.

Send Us A Message:

Do not fill in this field:

This site is protected by reCAPTCHA and the Google Privacy Policy and Terms of Service apply.

Do not fill in this field:

This site is protected by reCAPTCHA and the Google Privacy Policy and Terms of Service apply.

Do not fill in this field:

This site is protected by reCAPTCHA and the Google Privacy Policy and Terms of Service apply.

Do not fill in this field:

This site is protected by reCAPTCHA and the Google Privacy Policy and Terms of Service apply.

$

Do not fill in this field:

This site is protected by reCAPTCHA and the Google Privacy Policy and Terms of Service apply.