Active

Listing Tools

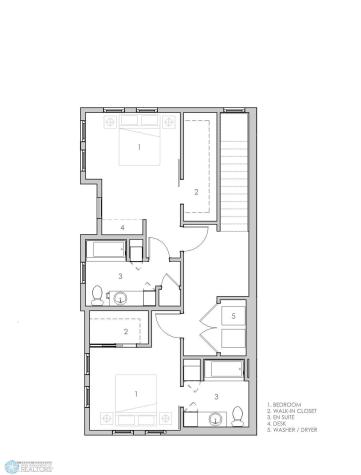
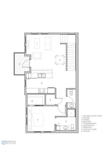
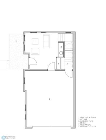
Beautiful Town home on Historic 8th Street ! Character, Charm, Mature Trees and one block from Island Park make this a wonderful place too call Home. 3 bedrooms, 4 bathrooms, main floor Patio, 2nd story Deck, heated 2 car garage w/floor drain, Laundry, all bedrooms have their own bathroom. This Town home over looks 8th street and has a Patio off of the main floor Family room/Bonus room. Easy access to everything Downtown, Restaurants, YMCA, Island Park, Broadway square. Brick and Metal exterior that blends into the neighborhood. Private garage and access to each Town home, lots of Natural light with Deep windows. Call and set up an appointment to tour, you will be glad you did, end of June completion.

Property Details of 502 8th Street S, Unit 5

Interior Features

Exterior Features

Map Location

Listed by David Noah of RE/MAX Legacy Realty

  Based on information submitted to MLS Grid / NORTHSTAR as of November 18, 2025 8:38 AM EST . All data is deemed reliable but is not guaranteed accurate by the MLS. All information should be independently reviewed and verified for accuracy. IDX information is provided exclusively for consumers’ personal, noncommercial use and may not be used for any purpose other than to identify prospective properties consumers may be interested in purchasing.

Hi there! How can we help you?

Contact us using the form below or give us a call.

Send Us A Message:

I agree to receive marketing and customer service calls and text messages from Flom Property Group. To opt out, you can reply 'stop' at any time or click the unsubscribe link in the emails. Consent is not a condition of purchase. Msg/data rates may apply. Msg frequency varies. Privacy Policy.

Do not fill in this field:

This site is protected by reCAPTCHA and the Google Privacy Policy and Terms of Service apply.

Hi there! How can we help you?

Contact us using the form below or give us a call.

Send Us A Message:

Do not fill in this field:

This site is protected by reCAPTCHA and the Google Privacy Policy and Terms of Service apply.

Hi there! How can we help you?

Contact us using the form below or give us a call.

Send Us A Message:

Do not fill in this field:

This site is protected by reCAPTCHA and the Google Privacy Policy and Terms of Service apply.

Do not fill in this field:

This site is protected by reCAPTCHA and the Google Privacy Policy and Terms of Service apply.

Do not fill in this field:

This site is protected by reCAPTCHA and the Google Privacy Policy and Terms of Service apply.

Do not fill in this field:

This site is protected by reCAPTCHA and the Google Privacy Policy and Terms of Service apply.

$

Do not fill in this field:

This site is protected by reCAPTCHA and the Google Privacy Policy and Terms of Service apply.